
Location : Medford, Oregon
Size : 69,277 sqft
Status : Ongoing ( Phase 3 in construction)
Team : Arkitek (Construction Administration)
: Thalden-Boyd-Emery Architects (Project Architect)
: Thornton Engineering, Inc.
: Forbes - Linchpin Structural Engineering
: Outlier Construction Co.
: Marquess & Associates Inc.
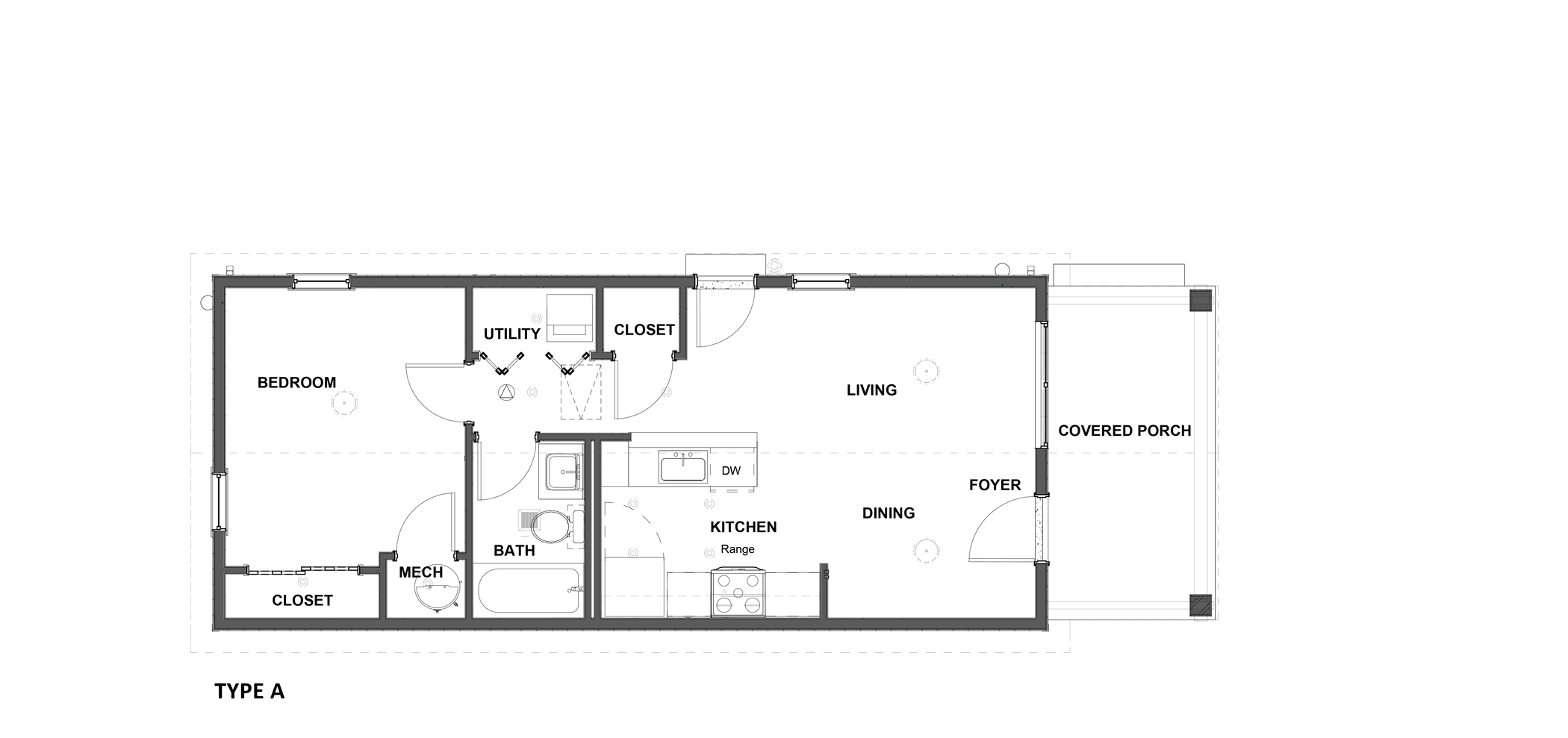
New Spirit Village is an affordable housing project that was developed for the fire-victim families of the 2020 Almeda wildfire. It is a creative re-thinking on the development of affordable housing focuses on home ownership, disaster resistant construction and sustainability. Participatory design has been an important factor in the designs where input from the potential homeowners, including younger people, women, and minorities and also with the participation of the directors of 18 social service and state housing agencies were included. The project consists of 87 residential units of different sizes on a 6-acre land and outdoor recreation area with community gardens and a playground. It aims to serve as a prototype for building affordable communities and a whole new approach that creates the opportunity for a way out of multi-generational poverty.

Credits: Thalden-Boyd-Emery Architects

UNIT TYPOLOGY
Credits: Thalden-Boyd-Emery Architects

Credits: Thalden-Boyd-Emery Architects


























