
Location : Medford, Oregon
Client : Family Nurturing Center
Type : Mixed-use
Size : 58,600 sqft
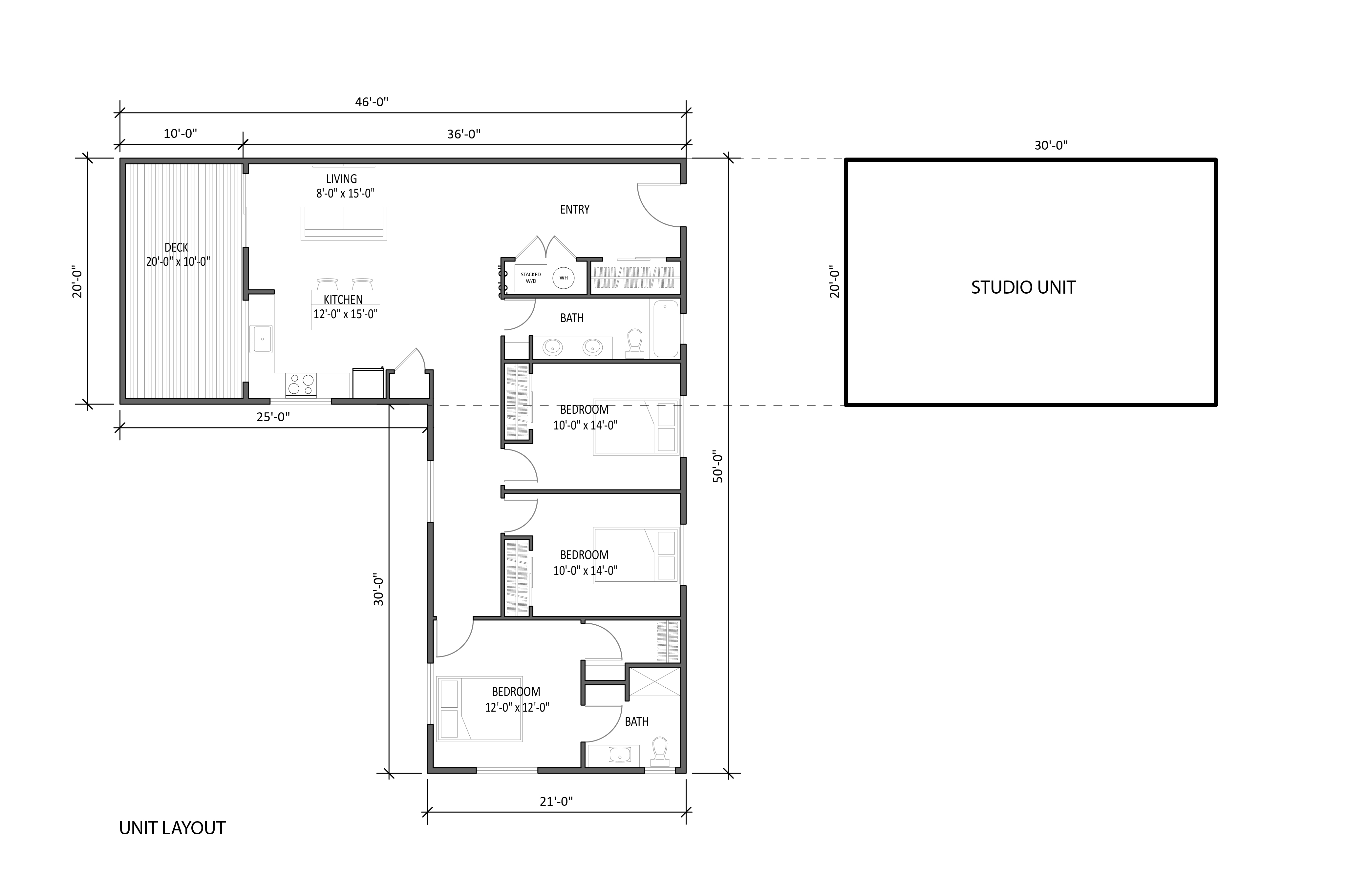
The project involves construction of a Family Neighborhood Center in approx 2.5 acres at Hawthorne Park situated in Medford. The concept revolves around creating a multi-generational programming with 36-unit
multi-family development, relief nursery and multi-purpose community space and commercial space.
The ground level will house the relief nursery, commercial space and community space for community dinners, staff training, events etc and is designed to encourages activity and disrupt isolation for seniors and families. The residential units are placed on the upper levels including studios, 1 bedroom, 2 bedroom and 3 bedroom units that are designed for ADA accessibility and with age friendly concepts .










