
Location : Medford, Oregon
Client : Family Nurturing Center
Type : Mixed-use
Size : 25,300 sf
Team : Ciota Engineering PC
Insight Consulting Eng, LLC.
Douglas Eng. Pacific, Inc.
Powell Eng. + Consulting
Scharen Design Studio, LLC
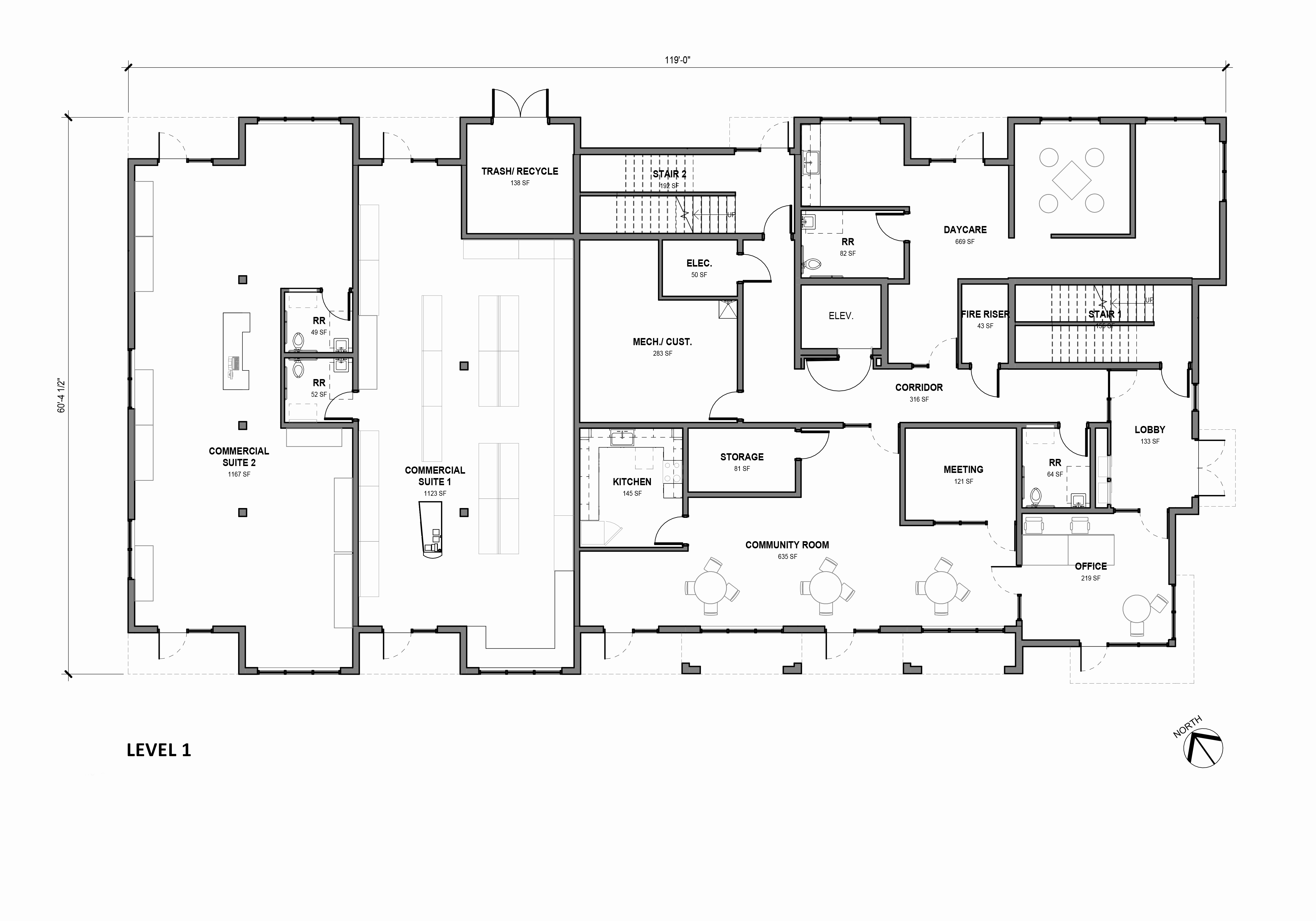
The anticipated development at Oakdale Avenue is an affordable housing and social services project to serve as a family nurturing center. The phase 1 of the project consists of the construction of a new four-story mixed-use building as well as miscellaneous associated site improvements. Level 1 will consist of an office suite, two commercial suites, a day care facility, a community meeting room with kitchen, and common spaces. Levels 2-4 will consist of 17 apartment units, ranging in size from studio to 3 bedroom, and laundry facilities. Two apartment units will be provided with accessible features and the remainder of the apartment units will be constructed in accordance with the requirements for “Type B” units. In addition, all apartment units on Level 4 will be constructed with additional accessibility features to promote aging in place. The roof deck provides an additional outdoor gathering space that will have tables for group gatherings and meals, and intimate seating areas along the edge.










